今天是:

原站

您是第 位访客

学科科研

学科科研

当前位置: 前导页 >> 学科科研 >> 正文

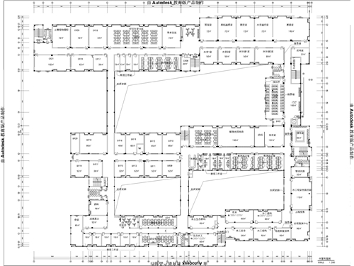
关于鄱阳湖流域水工程安全与资源高效利用国家地方联合实验室设计方案征求意见的通知

信息来源: 发布日期:2016-09-26

各位老师:

经多次讨论,我院重点平台鄱阳湖流域水工程安全与资源高效利用国家地方联合实验室设计已经初步完成。为更好地完成平台建设,满足教学、科研需要,现将设计方案公布,请大家提出宝贵意见,特别是各平台负责人及相关实验室使用人要认真阅读并提出实验室建设具体需求,以便进一步完善,共同努力将平台建设好。

联系人:甘建军 电话:18279166792

        盛国君 电话:13576023941

征求意见截止时间:2016年10月8日下午5时整。

特此通知!

水利与生态工程学院

2016年9月26日

 

上一条:水利部公益项目“农村小河流综合治理关键技术研究与示范”顺利结题

下一条:江西省水工程安全与资源高效利用工程中心拟聘用人员公告